Dans une PPE de 18 appartements, ce 3,5 pièces en rez-de-chaussée bénéficie d'un jardin d'environ 170 m2, d'une surface habitable de 80,5 m2 et d'une terrasse de 30 m2.
Il est composé comme suit :
- Hall d'entrée et couloir
- 2 chambres à coucher
- WC visiteurs
- Salle de bains
- Cuisine ouverte
- Séjour/salle à manger accès sur la terrasse
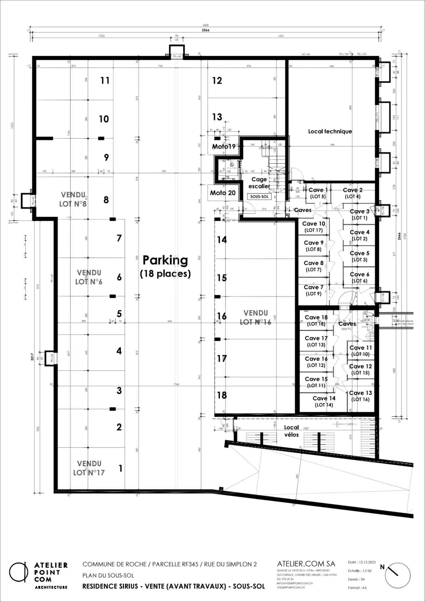
- Cave
Une place de parc intérieure est disponible en sus du prix à 35'000.-
Début des travaux février 2025.
Livraison automne 2026.
Lien vers le site web de la promotion : https://residence-sirius.ch/index.php
Il est composé comme suit :
- Hall d'entrée et couloir
- 2 chambres à coucher
- WC visiteurs
- Salle de bains
- Cuisine ouverte
- Séjour/salle à manger accès sur la terrasse
- Cave
Une place de parc intérieure est disponible en sus du prix à 35'000.-
Début des travaux février 2025.
Livraison automne 2026.
Lien vers le site web de la promotion : https://residence-sirius.ch/index.php
Adresse
A Roche VD / 1852 Roche VD
Nombre de pièces et surfaces
Nombre de pièces : 3.5
Surface habitable (m2) : 81
Nombre de chambres : 2
Nombre de salles de bain : 2
Données complémentaires
Lot : 3
Année de construction : 2026
Date de disponibilité : 30.09.2026
Liste des lots de cette promotionListe des lots
| Lot | Étage | Pièces | Surface m2 | Prix de vente CHF | Disponibilité |
|---|---|---|---|---|---|
| Appartement - 1 | 3.5 pces | 84 m2 | CHF 725'000.- | Disponible | |
| Appartement - 11 | 3.5 pces | 84 m2 | CHF 660'000.- | Disponible | |
| Appartement - 12 | 3.5 pces | 79 m2 | CHF 690'000.- | Disponible | |
| Appartement - 13 | 3.5 pces | 81 m2 | CHF 695'000.- | Disponible | |
| Appartement - 14 | 4.5 pces | 108 m2 | CHF 810'000.- | Disponible | |
| Dernier étage - 18 | 3.5 pces | 87 m2 | CHF 770'000.- | Disponible | |
| Appartement - 2 | 3.5 pces | 79 m2 | CHF 730'000.- | Disponible | |
| Appartement - 3 | 3.5 pces | 81 m2 | CHF 735'000.- | Disponible | |
| Appartement - 4 | 4.5 pces | 108 m2 | CHF 840'000.- | Disponible | |
| Appartement - 7 | 3.5 pces | 79 m2 | CHF 685'000.- | Disponible | |
| Appartement - 9 | 4.5 pces | 108 m2 | CHF 850'000.- | Disponible |